Dzīvoklis pārdošanā Benidorm par 440.700 € (BENI0219-20A)

Jauni dzīvokļi Benidormā - Levante

440.700 €
Ref. BENI0219-20A
Benidorm, Alicante Skatīt karti

Pamatīpašības

m<sup>2</sup> dzīvojamā platība
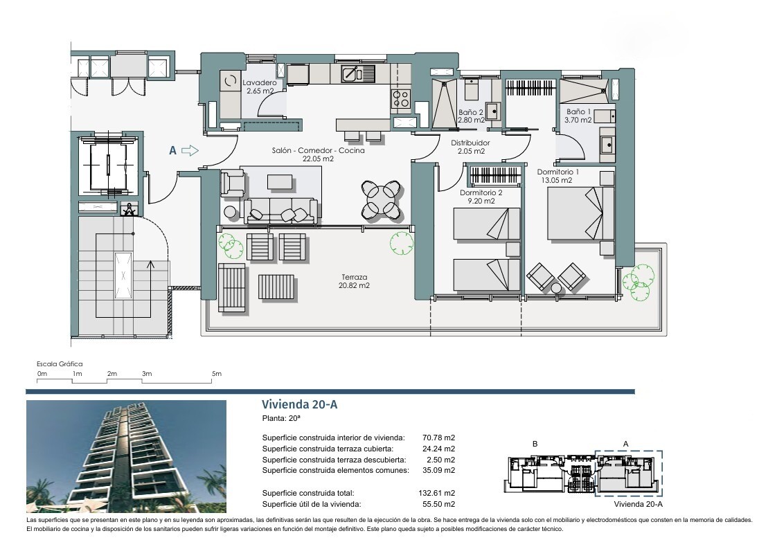
71 m2 dzīvojamā platība
Guļamistabas
2 Guļamistabas
Vannas istabas
2 Vannas istabas
Attālums līdz jūrai
1 km no pludmales
Garāža / Autostāvvieta
Garāža / Autostāvvieta
Terases
24 terases m²
Koplietošanas baseins
Dārzs
Lifts
Veļas telpa
Sadzīves tehnika
Gaisa kondicionieris
Divkāršs stiklojums

Apraksts

Vai vēlaties vairāk informācijas? Mazāk informācijas
Atklājiet unikālu dzīvojamo konceptu, ko veido 44 luksusa mājokļi iespaidīgā 22 stāvu ēkā. „Slim Tower” izceļas ar savu inovatīvo arhitektūru, elegantām un modernām līnijām, un tas stratēģiski atrodas prestižā Benidormas rajonā, blakus cienījamajai Lope de Vega skolai un IMED Levante slimnīcai. Katrs no šiem mājokļiem ir veidots, lai piedāvātu mājī...

Atrašanās vieta

Benidorm, Alicante
Vai jūs interesē šis īpašums un vēlaties iegūt vairāk informācijas?

Simulē savu hipotekāro kredītu

Neatlikus finansējamās cenas atlikums
00,00 €
Aptuvenās izmaksas:
00,00 €
Kopējais pašu kapitāls
00,00 €
Hipotekas maksājums
€/mes

Ko šis rajons piedāvā?

Vai vēlaties vairāk informācijas?
Šo īpašumu pašlaik skatās 10 personas.