Vila pārdošanā Altea par 2.359.000 € (ALTE3636-2)

Grezna villa Alteā, kas tiek būvēta, ar skatu uz jūru

2.359.000 €
Ref. ALTE3636-2
Altea, Alicante Skatīt karti

Pamatīpašības

m<sup>2</sup> zemes gabals
1006 m2 zemes gabals
m<sup>2</sup> dzīvojamā platība
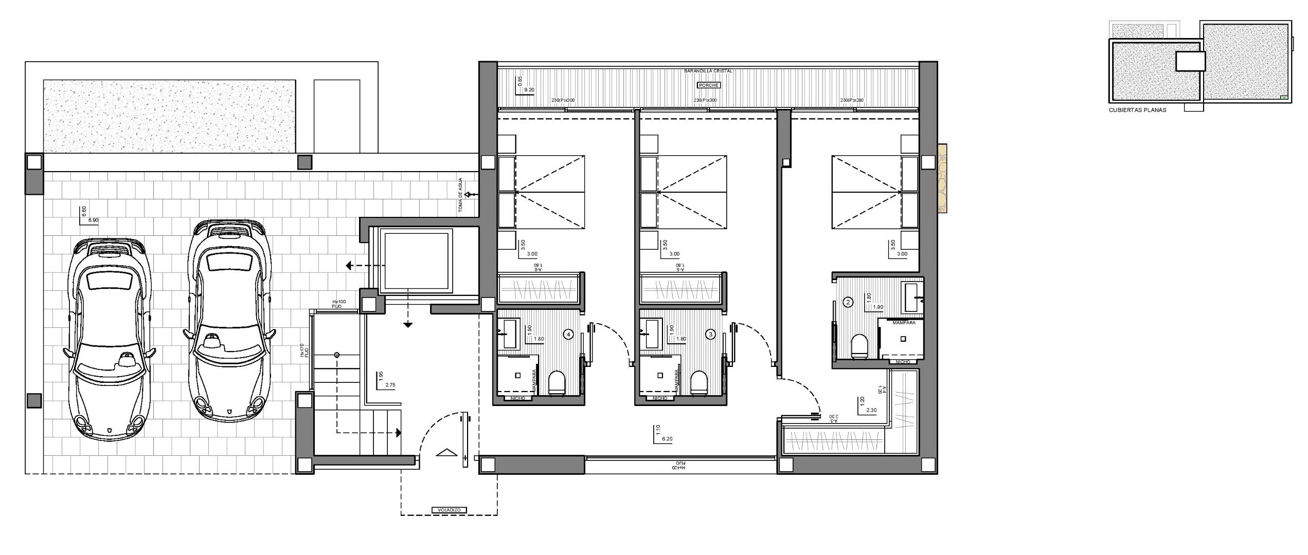
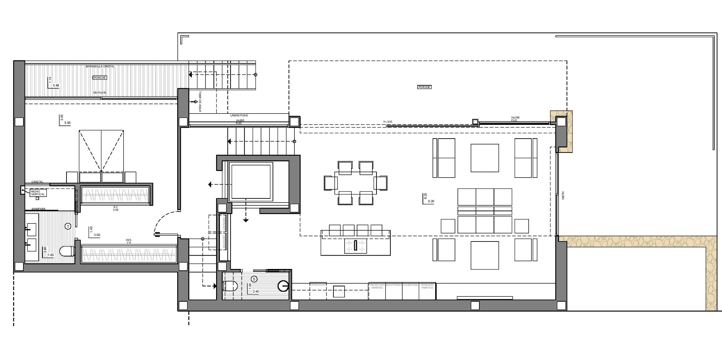
249 m2 dzīvojamā platība
Guļamistabas
4 Guļamistabas
Vannas istabas
5 Vannas istabas
Attālums līdz jūrai
4 km no pludmales
Garāža / Autostāvvieta
Garāža / Autostāvvieta
Terases
95 terases m²
Privātais baseins
Lifts
Sadzīves tehnika
Gaisa kondicionieris
Apkure
Skapji
Divkāršs stiklojums
Viedmājas sistēma
Signalizācija
Grils
Apsildāmās grīdas

Apraksts

Vai vēlaties vairāk informācijas? Mazāk informācijas
Iepazīstinām ar Villa Alba, ekskluzīvu mūsdienīga dizaina villu, kas atrodas dzīvojamajā kompleksā Alteā, pieprasītajā Kosta Blankas ziemeļu piekrastē.
Šis elegantais īpašums, kas paredzēts prasīgiem pircējiem, kuri novērtē modernu arhitektūru, privātumu un iespaidīgus skatus uz Vidusjūru, piedāvā perfektu līdzsvaru starp komfortu, stilu un funkcio...

Atrašanās vieta

Altea, Alicante
Vai jūs interesē šis īpašums un vēlaties iegūt vairāk informācijas?

Simulē savu hipotekāro kredītu

Neatlikus finansējamās cenas atlikums
00,00 €
Aptuvenās izmaksas:
00,00 €
Kopējais pašu kapitāls
00,00 €
Hipotekas maksājums
€/mes

Ko šis rajons piedāvā?

Vai vēlaties vairāk informācijas?
Šo īpašumu pašlaik skatās 34 personas.