Vila pārdošanā La Nucia par 661.250 € (LANU8023)

Luksusa villas ar skatu uz jūru La Nusijā

661.250 €
Ref. LANU8023
La Nucia, Alicante Skatīt karti

Pamatīpašības

m<sup>2</sup> dzīvojamā platība
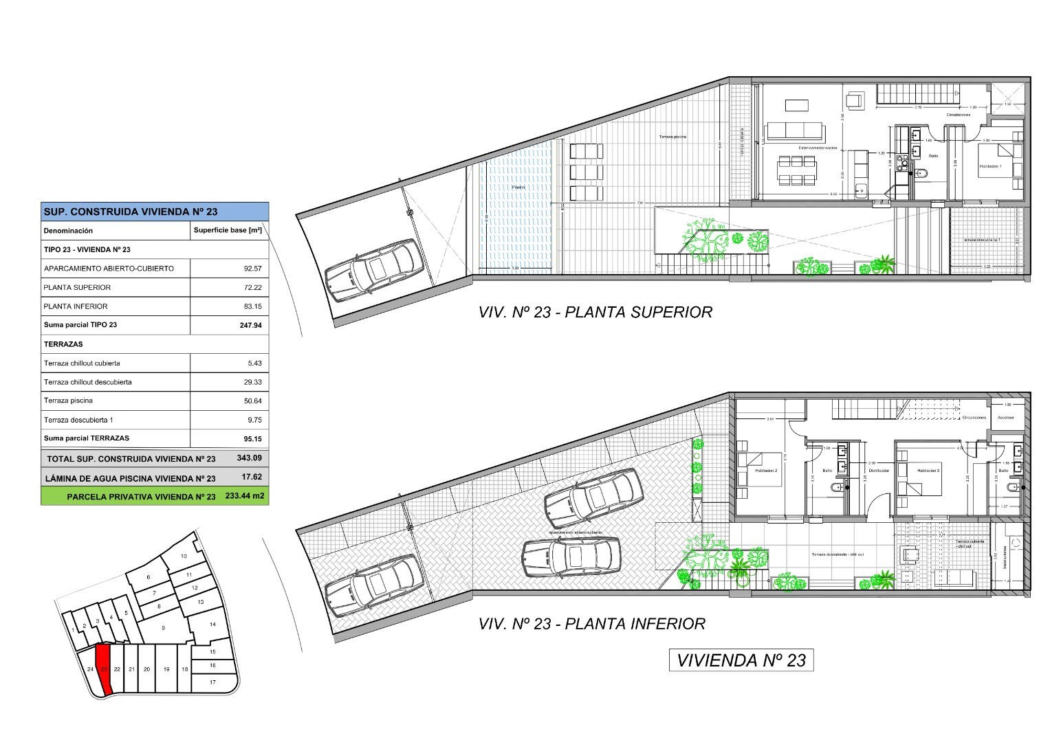
343 m2 dzīvojamā platība
Guļamistabas
3 Guļamistabas
Vannas istabas
3 Vannas istabas
Attālums līdz jūrai
6 km no pludmales
Garāža / Autostāvvieta
Garāža / Autostāvvieta
Privātais baseins
Dārzs
Saimn. telpa / pieliekamais
Veļas telpa
Sadzīves tehnika
Gaisa kondicionieris
Skapji
Garderobe
Divkāršs stiklojums
Apsildāmās grīdas

Apraksts

Vai vēlaties vairāk informācijas? Mazāk informācijas
Atklājiet Amiral — ekskluzīvu 24 neatkarīgu villu kolekciju, kas no jauna definē eleganci un komfortu Kosta Blankā. Šīs mājas atrodas paaugstinātā vietā La Nusijā (La Nucía) un piedāvā panorāmas skatus uz Vidusjūru un Benidormas panorāmu maksimāla privātuma gaisotnē.

Īpašuma galvenie punkti:
Avangarda arhitektūra: Mājas līdz 501 m² ar atvērta plān...

Atrašanās vieta

La Nucia, Alicante
Vai jūs interesē šis īpašums un vēlaties iegūt vairāk informācijas?

Simulē savu hipotekāro kredītu

Neatlikus finansējamās cenas atlikums
00,00 €
Aptuvenās izmaksas:
00,00 €
Kopējais pašu kapitāls
00,00 €
Hipotekas maksājums
€/mes
Vai vēlaties vairāk informācijas?
Šo īpašumu pašlaik skatās 45 personas.