Villa Irati, kas atrodas vienā no ekskluzīvākajiem dzīvojamajiem rajoniem Benisas piekrastē, prestižajā Racó de Galeno rajonā, iemieso izsmalcinātu mūsdienīgu Vidusjūras dzīvesveidu. Ideāli novietota starp Morairu un Kalpi, īpašums bauda priviliģētu augstieni ar skatu uz jūru un Kosta Blankas ziemeļu dabas ainavu.
Jau no pirmā iespaida villa izceļ...as ar savu eleganto arhitektūras kompozīciju, kurā ir tīri balti apjomi un no grīdas līdz griestiem nostikloti logi, kas nemanāmi savieno iekštelpu un āra dzīvojamās telpas. Galvenā fasāde paveras uz iespaidīgu panorāmas terasi ar bezgalības baseinu, radot nepārtrauktu vizuālu plūsmu starp dzīvojamo zonu, ēdamistabas zonu un Vidusjūras horizontu.
Interjers ir rūpīgi veidots, lai atspoguļotu gan izsmalcinātību, gan komfortu. Dabiskais apgaismojums piepilda atvērta plānojuma dzīvojamās telpas, kur izsmalcināti materiāli, maigi toņi un pārdomāta telpiskā plānošana rada mierīgu un mūsdienīgu atmosfēru. Galvenajā viesistabā ir vairākas atpūtas zonas, un tā uztur tiešu vizuālu savienojumu ar ēdamistabas zonu un virtuvi, pastiprinot atvērtības un plūstamības sajūtu visā mājā.
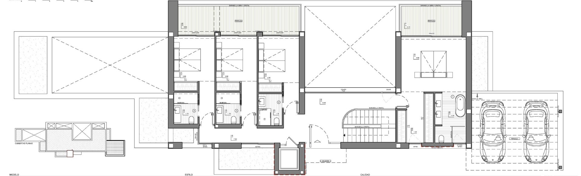
Augšējā stāvā atrodas nakts zona, kur guļamistabām ir tieša piekļuve privātām terasēm — ideāli piemērota vieta, kur pamosties, baudot nepārtrauktu skatu uz jūru un mierīgas Vidusjūras vides skaņas.
Plašais apakšējais stāvs piedāvā papildu elastību un atkarībā no īpašnieka dzīvesveida vajadzībām tajā var viegli iekārtot privātu sporta zāli, vīna pagrabu, izklaides atpūtas telpu vai papildu viesu numuru.
Ārā labiekārtoti dārzi un vairākas pārklātas terases nodrošina iespēju visu gadu baudīt Kosta Blankas klimatu — ideāli piemēroti viesu uzņemšanai, saulrieta vakariem vai relaksējošiem brīžiem pie bezgalības baseina ar skatu uz jūru.
Piekļuve īpašumam ir nodrošināta no zemes gabala augšējās daļas, kur atrodas eleganta gājēju ieeja un pārklāta garāža divām automašīnām. No šī līmeņa gan ārējās kāpnes, gan iekšējais lifts savieno visus villas stāvus, nodrošinot komfortu, pieejamību un arhitektonisku saskaņotību.
Villa Irati ir vairāk nekā rezidence — tā ir iespaidīga ēka, kas paredzēta tiem, kas meklē privātumu, izcilu dizainu un panorāmas skatu uz Vidusjūru vienā no iekārojamākajām vietām Kosta Blankā.